13208166786
282644463@qq.com
搜索
城市
首页
关于我们
星空帐篷
新闻中心
成功案例
联系我们
星空帐篷
网站首页
>
星空帐篷
1
/
4
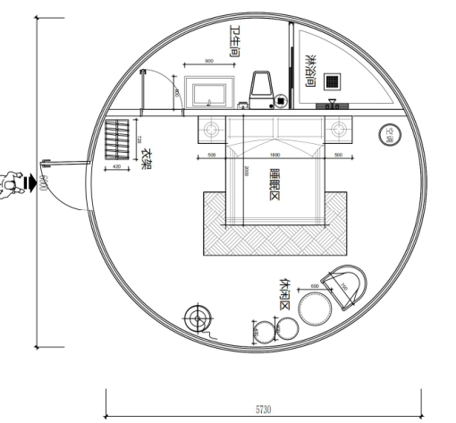
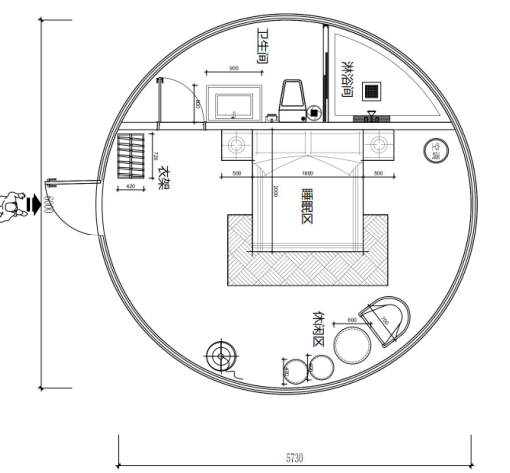
全景星空房(揽月)
框架:铝合金
规格(直径):6m
墙体:中空玻璃+外贴防晒隔热膜
套内面积:28㎡
投影面积:30㎡
抗风等级:10级以下
产品咨询
产品介绍
下一篇:
智能星空房(观星海)
产品咨询
提交留言